Ningbo Hongjia CNC Technology Co., Ltd. Otthon / Termékek / Rendes forduló, maró- és fúrási gép sorozat / X6132 univerzális emelési asztali marógép

X6132 univerzális emelési asztali marógép

Termék bevezetése és felhasználása
Ez a szerszámgép egyfajta erős fémvágó szerszám, a szerszámgép erős merevséggel, széles adagolási sebességgel rendelkezik, és nehéz terhelésű chipset hordozhat. Az orsókúp lyuk közvetlenül vagy különféle hengeres maróvágók, körmaró vágók, képzővágók, arcmarók és egyéb szerszámok kiegészítőivel telepíthető, a sík különféle részeinek, lejtőn, groove, lyukban stb. Feldolgozásához.

+ Vegye fel velünk a kapcsolatot
  • X6132 univerzális emelési asztali marógép

Termelési információk

Fő szerkezeti jellemzők
Az 1, az alap, a törzs, a munkapad, a csúszda, az emelő csúszda és más fő alkatrészek nagy szilárdságú anyagokból állnak, és a mesterséges öregedési kezelés, a szerszámgép hosszú távú stabilitásának biztosítása érdekében.
A 2. ábrán látható, hogy a szerszámgép fő tengelye egy kúpos hengercsapágy, a fő tengely három tartószerkezetet alkalmaz, a fő tengely rendszer merevsége jó, a csapágykapacitás erős, és a fő tengely energiafogyasztási fékezést alkalmaz, a féknyomaték nagy, és a megállás gyors és megbízható.
A 3. ábrán a táblázat vízszintes forgási szöge ± 45 ° kibővíti a szerszámgép feldolgozási tartományát. A fő átviteli rész és a munkaasztal takarmány -része elfogadja a sebességváltó -átviteli szerkezetet, a sebességszabályozási tartomány széles, a sebességváltozás pedig kényelmes és gyors.
A 4. ábrán az X/Y/Z táblázat kézi takarmányozással, mobiltelefonokkal és mobiltelefonnal gyors előrehaladással rendelkezik, az előadási sebesség megfelel a különböző feldolgozási követelményeknek; A gyors táplálék miatt a munkadarab gyorsan elérheti a feldolgozási pozíciót, a feldolgozás kényelmes és gyors, és a nem feldolgozási idő lerövidül.
5, x, y, z Három irányú útmutató pár ultra-audio-oltással, precíziós csiszolás és kaparási kezelés, kényszer kenéssel, javítja a pontosságot, meghosszabbítja a gép élettartamát.
6. Ugyanakkor a hűtőrendszer megváltoztatja a hűtőfolyadék -áramlás méretét azáltal, hogy beállítja a fúvókát a különböző feldolgozási igények kielégítésére.
7, szerszámgép -tervezés az ergonómiai elvnek megfelelően, könnyen kezelhető; Az üzemeltetési panelt ábrás szimbólumokkal tervezték, amelyek egyszerűek és intuitívak.

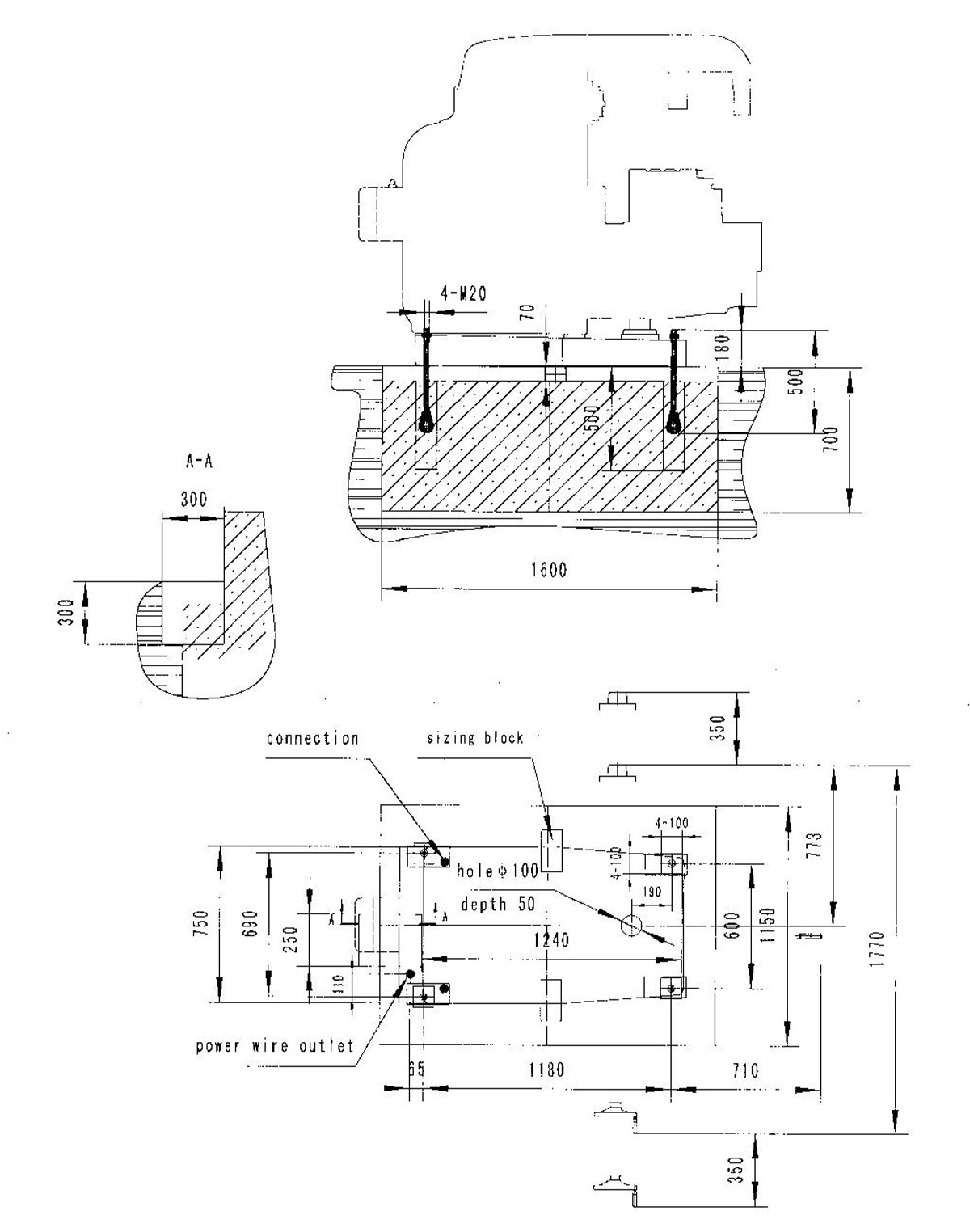
A szerszámgépek fő műszaki paraméterei

A fő tengely lyuk kúpos 7ina 24 ISO50
Távolság az orsó középső vonalától az ágy függőleges vezető sínéig 30-350 mm
Távolság az orsó középső vonalától a felfüggesztési gerendaig 155 mm
Orsó rekesz 29 mm
Maximális forgási szög ± 45 °
Orsósebesség/sorozat 30 ~ 1500 RPM /18 szint
Asztalméret 1320x320 mm
Asztali löket hosszirányú/keresztirányú/függőleges 700 (680/255 (240)/320 (300) mm
Asztali betáplálási tartomány hosszanti/keresztirányú/függőleges 18. szint 18 23.5-1180/23.5-1180/8-394 mm/perc
Asztal gyors mozgó sebesség függőleges/vízszintes/függőleges 2300/2300/770 mm/perc
A munkapad T-alakú réseinek száma, szélessége és távolsága 3/18/70 mm
Fő motoros teljesítmény 7,5 kW
Táplálja a motor teljesítményét 1,5 kW
Gépi méretek (l x w x h) 2294x1770x1665 mm
Hálógép súlya 2700/3000 kg

Tartja a kapcsolatot

+ SUBMIT
Ningbo Hongjia CNC Technology Co., Ltd.
Ningbo Hongjia CNC Technology Co., Ltd.
A Ningbo Hongjia CNC Technology Co., Ltd. 2006 -ban indult és 2018 -ban alapították. A Qianwan New District, a Ningbo City, a Zhejiang tartomány, a Kína Jangze folyó Delta gazdasági övezetének déli szárnyában található. Ez egy olyan vállalkozás, amely a CNC fémvágó berendezések kutatására, fejlesztésére és értékesítésére szakosodott. Mint Kína X6132 univerzális emelési asztali marógép supplier and custom X6132 univerzális emelési asztali marógép company, Erős műszaki erővel és gazdag ipari tapasztalattal, a Hongjia CNC elkötelezett amellett, hogy fejlett CNC -megoldásokat kínál az ügyfelek számára a különböző iparágak ügyfeleinek igényeinek kielégítésére.
Berendezés
  • Gyári megjelenés
  • Gyári megjelenés
  • Felszerelés
  • Felszerelés
  • Felszerelés
  • Felszerelés
  • Felszerelés
Mi a hír
Ipari ismeretek

X6132 univerzális emelési asztali marógép , A Hongjia CNC termékeként számos iparágban nagy hírnevet nyert erőteljes fémvágási képessége és széles körű alkalmazhatósága miatt. Ez a szerszámgép nem csak elég merev ahhoz, hogy ellenálljon a nehéz teherbírási műveleteknek, hanem széles tartományban is felszerelve a feldolgozási folyamat stabilitásának és hatékonyságának biztosítása érdekében. Az orsó kúpos lyuk kialakítása rugalmas, és különféle hengeres maróvágók, kör alakú maróvágók, maróvágók képződése, arcmaróvágók stb. Telepíthetők, korlátlan lehetőségeket biztosítva különféle komplex alkatrészek feldolgozására, a síkok, a ferde, az autógyártók, az autógyártók, a motoros gyártás és a motoros gyártáshoz való feldolgozó berendezések és a motoros gyártáshoz, és egy ideális feldolgozó berendezések, amelyek gépi gyártáshoz, másolatokhoz, másolatokhoz, másolatokhoz és másoknak, a Motorcycy -hez, és egy ideális feldolgozó berendezések, amelyek gépi gyártáshoz, másolatokhoz, másolatokhoz és másoknak, a Motorcycy -hez, és ez egy iparágak.

Kiváló kivitelezés, kiváló minőségű öntés
A Hongjia CNC tudja, hogy a kiváló minőség a részletek végső törekvéséből származik. Az X6132 univerzális emelőasztal-marógép fő alkotóelemei, mint például az alap, a test, a munkapad, a csúszda, az emelő csúszda stb., NAGY szilárdságú anyagokkal és mesterségesen érleltek, amelyek hatékonyan kiküszöbölik az anyag belső feszültségét, és biztosítják a szerszámgép hosszú távú stabilitását és precíziós visszatartását. Az orsó a kúpos görgőscsapágyakat alkalmazza, három-támogató szerkezetével kombinálva, amely nemcsak jó rendszer merevségével és erős terhelési képességével rendelkezik, hanem energiatakarékos fékkészülékkel is felszerelt, nagy fékezési nyomatékkal, gyors és megbízható leállítással, amely szilárd garanciát biztosít a magas pontosságú feldolgozáshoz.

Rugalmas és változtatható, kibővítve a feldolgozási határokat
A diverzifikált feldolgozási igények kielégítése érdekében az X6132 univerzális emelőasztal -marógép vízszintes forgási szöge elérheti a ± 45 ° -ot. Ez a kialakítás nagymértékben kibővíti a szerszámgép feldolgozási tartományát. Ugyanakkor a munkafolyamat fő átviteli része és táplálék része a sebességváltó -átviteli struktúrát alkalmazza, széles sebességszabályozási tartományban, kényelmes és gyors sebességváltással, így a feldolgozási folyamat rugalmasabbá és hatékonyabbá válik. A táplálkozási mód szempontjából a szerszámgép X/Y/Z irányai három üzemmóddal rendelkeznek: kézi etetés, motorizált etetés és motorizált gyors táplálkozás. Az etetési sebesség rugalmasan beállítható a különböző feldolgozási igények szerint. A gyors táplálkozási funkció lehetővé teszi a munkadarab számára, hogy gyorsan elérje a feldolgozási helyzetet, jelentősen lerövidítve a nem feldolgozási időt és javítva az általános feldolgozási hatékonyságot.

Precíziós gyártás, kiterjesztett szolgáltatási élettartam
A részletek feldolgozása szempontjából az X6132 univerzális emelőasztal -marógép X, Y és Z vezető sínekét ultrahanggal ultra oltották, precíziós talajt és lekaparást kaptak, és a kényszerített kenőrendszer nemcsak jelentősen javította a feldolgozási pontosságot, hanem hatékonyan kiterjesztette a szerszámgép szolgáltatási élettartamát is. A kenési eszköz kényszerítheti az ólomcsavarok és a vezetők sínek kenését a hosszanti, keresztirányú és függőleges irányban, hatékonyan csökkentve a szerszámgép kopását, és biztosítva a szerszámgép hatékony és stabil működését. Ezenkívül a hűtőrendszer rugalmasan beállítja a hűtőfolyadék -áramlást azáltal, hogy beállítja a fúvókát, hogy megfeleljen a hűtési igényeknek különböző feldolgozási körülmények között, tovább javítva a feldolgozási minőséget és a hatékonyságot.

Humanizált tervezés, egyszerűsített működési folyamat
A Hongjia CNC teljes mértékben figyelembe vette az emberi gépek interakciójának kényelmét az X6132 univerzális emelési asztali marógép tervezésekor. A szerszámgép általános kialakítása megfelel az ergonómia alapelveinek, könnyen kezelhető és könnyen használható. A kezelőpanel egy grafikus szimbólumtervezést fogad el, amely intuitív és könnyen érthető. Még az első operátorok is gyorsan elsajátíthatják azt, ami nagymértékben csökkenti a működés nehézségeit és javítja a munka hatékonyságát.

Ne habozzon kapcsolatba lépni, amikor szüksége van ránk!